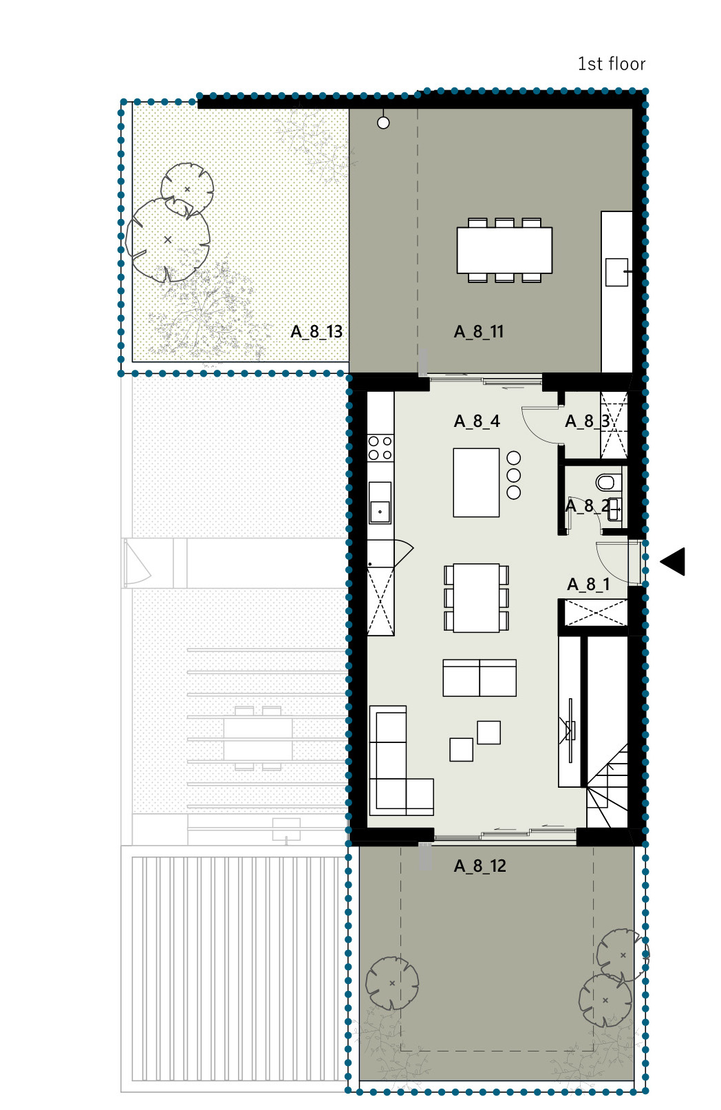
A13-A_8





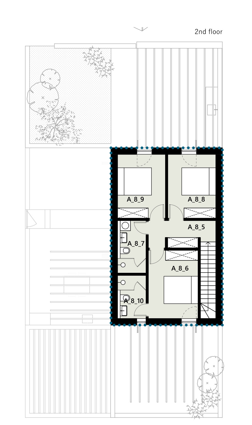
Apartment A13-A_8
INTERIOR P (m2)
A_8_1 Entrance 3.01 M²
A_8_2 Toilet 1.73 M²
A_8_3 Laundry room 2.07 M²
A_8_4 Living, dining, kitchen 43.04 M²
A_8_5 Staircase 9.49 M²
A_8_6 Sleeping room (1) 11.45 M²
A_8_7 Bathroom 4.78 M²
A_8_8 Sleeping room (2) 10.96 M²
A_8_9 Sleeping room (3) 10.96 M²
A_8_10 Bathroom 3.44 M²
TOTAL AREA INTERIOR 100.93 M²
EXTERIOR
A_8_11 Terrace/outdoor kitchen 36.59 M²
A_8_12 Terrace/outdoor kitchen 31.06 M²
A_8_13 Garden 26.66 M²
A_8_01 Parking/garage 12.56
A_8_02 Parking/garage 20.00
TOTAL AREA EXTERIOR 126.87 M²
TOTAL AREA 227.80 M²