A12-A_8





Apartment
INTERIOR P (M²)
A_8_1 Entrance 3.01 M²
A_8_2 Toilet 1.73 M²
A_8_3 Laundry room 2.07 M²
A_8_4 Living, dining, kitchen 43.07 M²
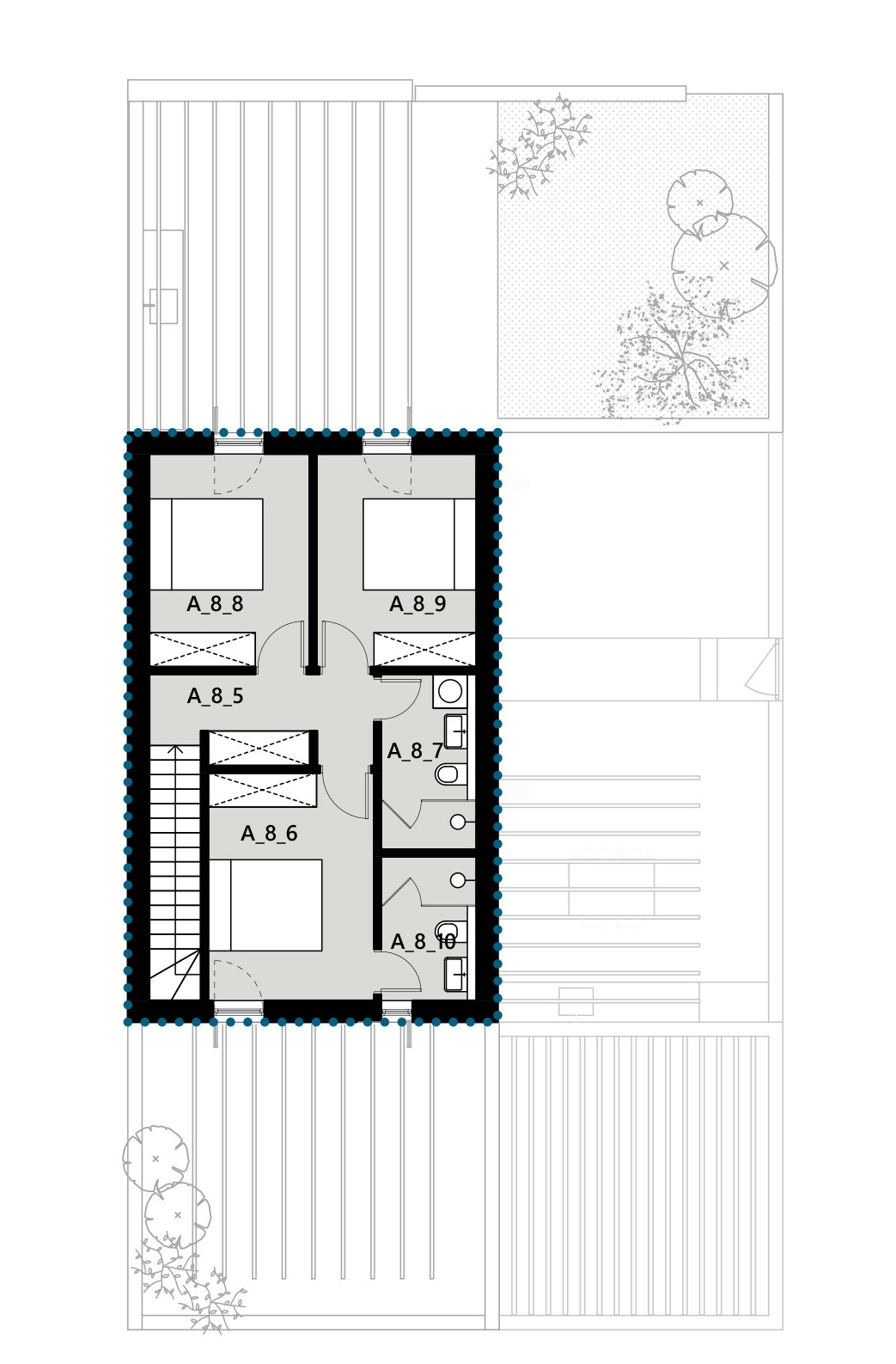
A_8_5 Staircase 9.46 M²
A_8_6 Sleeping room (1) 11.48 M²
A_8_7 Bathroom 4.65 M²
A_8_8 Sleeping room (2) 10.96 M²
A_8_9 Sleeping room (3) 10.96 M²
A_7_10 Bathroom 3.44 M²
TOTAL AREA INTERIOR 100.83 M²
EXTERIOR
A_8_11 Terrace/outdoor kitchen 36.55 M²
A_8_12 Terrace/outdoor kitchen 31.18 M²
A_8_13 Garden 26.78 M²
A_8_01 Parking/garage 12.6 M²
A_8_02 Parking/garage 19.9 M²
TOTAL AREA EXTERIOR 127.01 M²
TOTAL AREA 227.84 M²