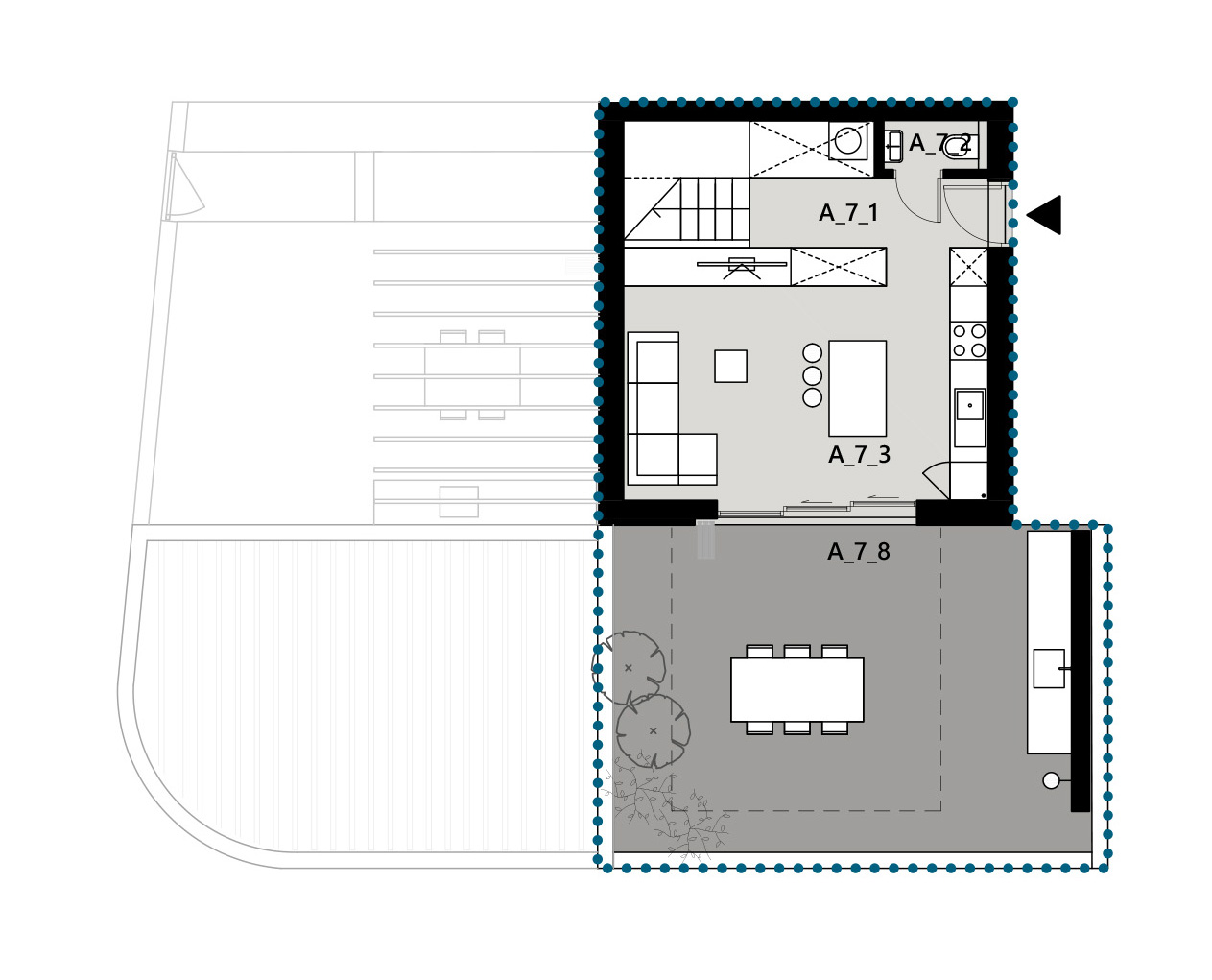
A12-A_7





Apartment A12-A_7
INTERIOR P (M²)
A_7_1 Entrance 5.85 M²
A_7_2 Toilet 1.08 M²
A_7_3 Living, dining, kitchen 23.24 M²
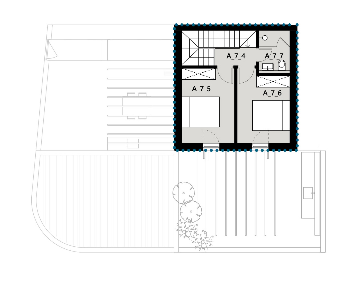
A_7_4 Staircase 7.43 M²
A_7_5 Sleeping room (1) 10.38 M²
A_7_6 Sleeping room (2) 11.18 M²
A_7_7 Bathroom 3.37 M²
TOTAL AREA INTERIOR 62.53 M²
EXTERIOR
A_7_8 Terrace/outdoor kitchen 37.37 M²
A_7_0 Parking/garage 13.5 M²
TOTAL AREA EXTERIOR 50.87 M²
TOTAL AREA 113.40 M²