A12-A_5





Apartment A12-A_5
INTERIOR P (M²)
A_5_1 Entrance 6.72 M²
A_5_2 Toilet 1.63 M²
A_5_3 Living, dining, kitchen 24.25 M²
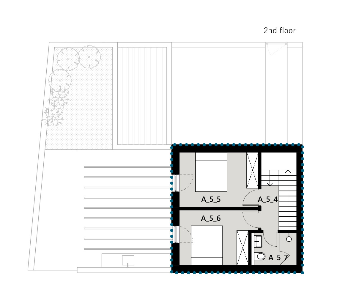
A_5_4 Staircase 7.2 M²
A_5_5 Sleeping room (1) 11.34 M²
A_5_6 Sleeping room (2) 10.44 M²
A_5_7 Bathroom 3.38 M²
TOTAL AREA INTERIOR 64.96 M²
EXTERIOR
A_5_8 Terrace/outdoor kitchen 40.84 M²
A_5_9 Garden 16.83 M²
A_5_01 Parking/garage 12.04 M²
A_5_02 Parking/garage 12.99 M²
TOTAL AREA EXTERIOR 82.70 M²
TOTAL AREA 147.66 M²