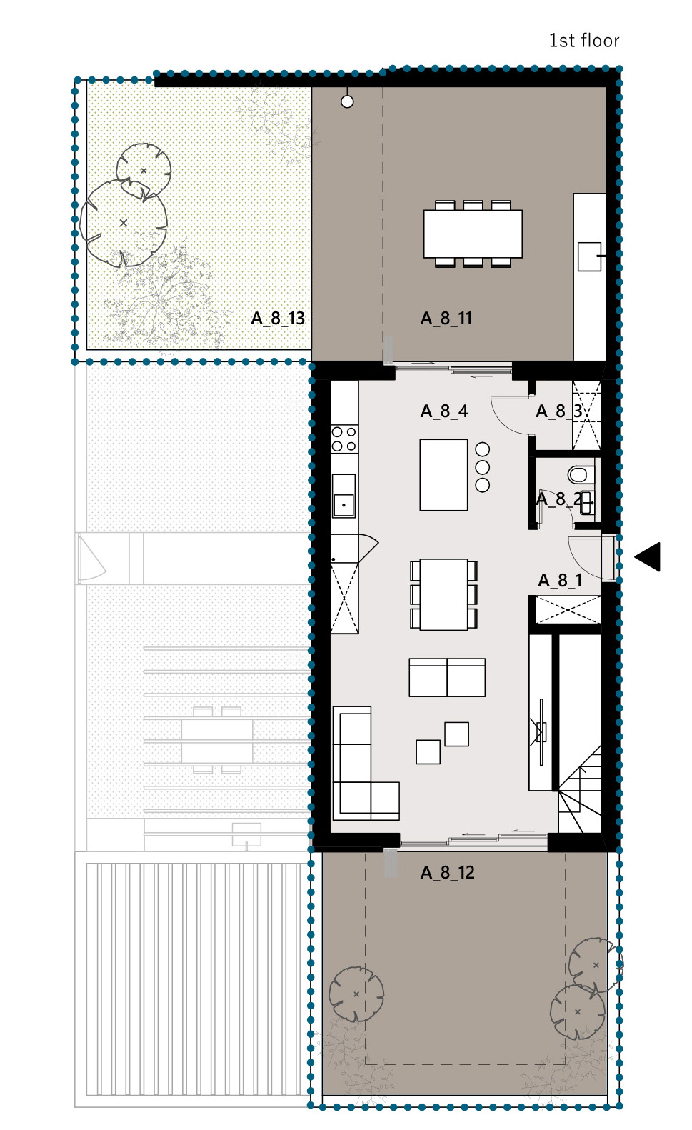
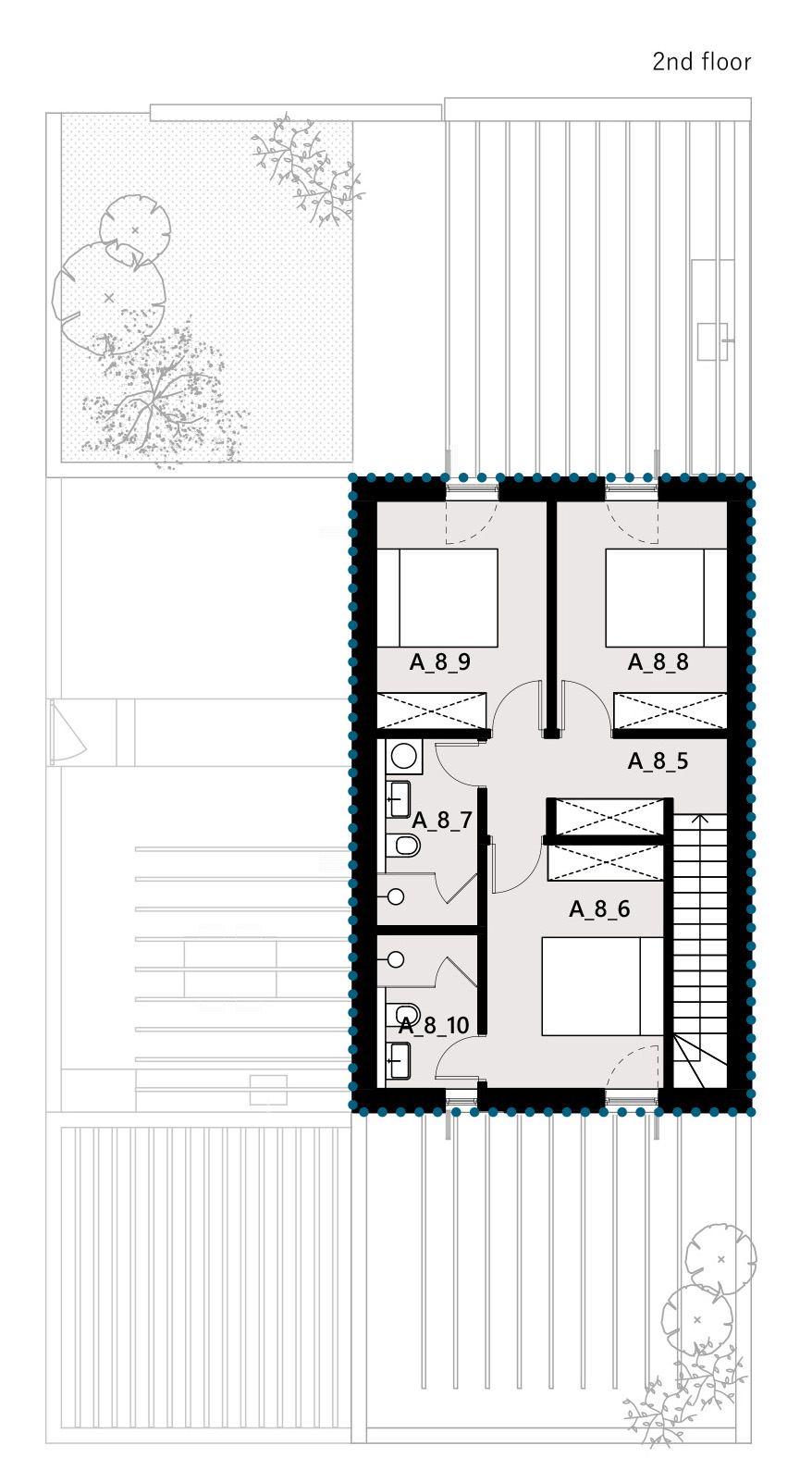
A10-A_8





Apartment A10-A_8
INTERIOR P (m2)
A_8_1 Entrance 3.02 M²
A_8_2 Toilet 1.68 M²
A_8_3 Laundry room 2.11 M²
A_8_4 Living, dining, kitchen 43.05 M²
A_8_5 Staircase 9.51 M²
A_8_6 Sleeping room (1) 11.42 M²
A_8_7 Bathroom 4.58 M²
A_8_8 Sleeping room (2) 10.96 M²
A_8_9 Sleeping room (3) 10.96 M²
A_7_10 Bathroom 3.4 M²
TOTAL AREA INTERIOR 100.69 M²
EXTERIOR
A_8_11 Terrace/outdoor kitchen 37.83 M²
A_8_12 Terrace/outdoor kitchen 31.06 M²
A_8_13 Garden 27.62 M²
A_8_01 Parking/garage 19.95 M²
A_8_02 Parking/garage 12.69 M²
TOTAL AREA EXTERIOR 129.15 M²
TOTAL AREA 229.84 M²